- E-LIFE
- 新築分譲マンション
- 福岡県でエリアから探す
- 福岡市博多区
- サングレート博多グランシティ エグゼ
新築マンション
分譲中
サングレート博多グランシティ エグゼ
| 所在地 | 福岡県福岡市博多区井相田2丁目12-11(地番) |
|---|---|
| 交 通 | 西鉄バス「麦野」バス停 徒歩5分/西鉄天神大牟田線「雑餉隈」駅 徒歩11分 (820m) |
| 総戸数 | 140戸 |
LAYOUT
間取図
-
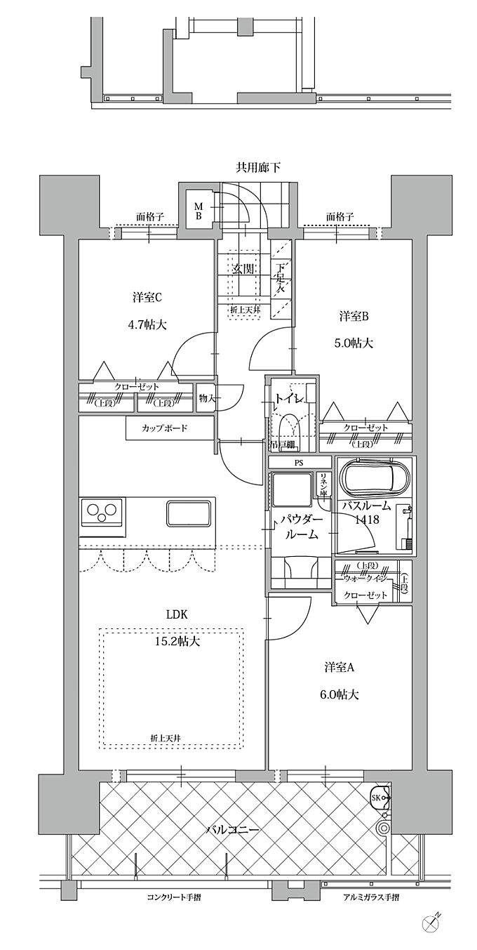
タイプ H 所在階数 - 価格 3990万円~4260万円 間取り 3LDK+WIC 専有面積 67.32㎡ バルコニー 13.20㎡ 備考 ■67m2大では2,550の広い流し台設置。カップボードと合わせて充分な収納力
■ガーデニングに便利なバルコニースロップシンク
■洋室Aには収納力の高いウォークインクローゼットを設置 -
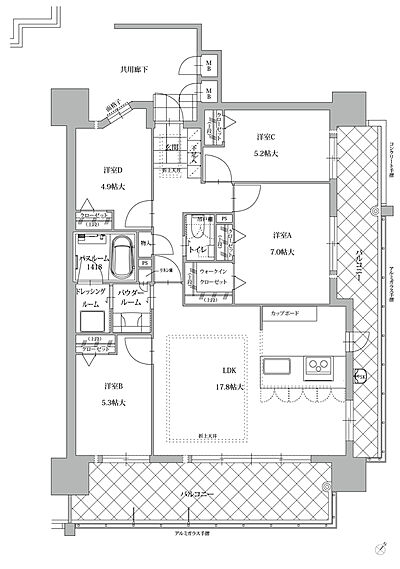
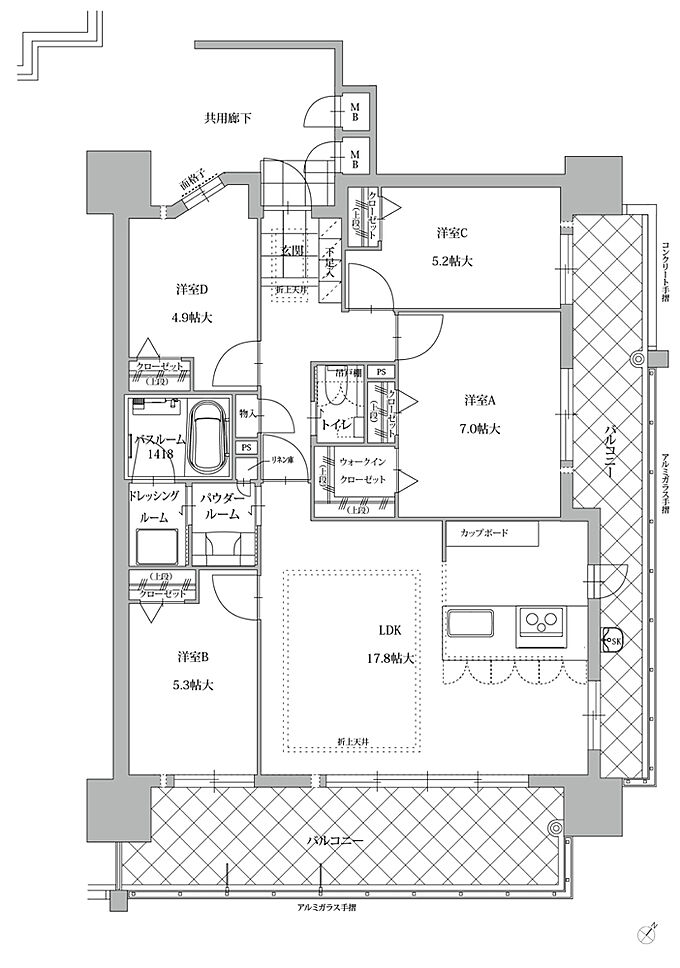
タイプ K 所在階数 - 価格 5420万円 間取り 4LDK+WIC 専有面積 86.98㎡ バルコニー 28.86㎡ 備考 ■家族との時間を紡ぐ約17.8帖大の広々LDK
■大型バルコニーを2面に備えた角住戸4LDK
■センターオープンサッシが光と風を紡ぐ -
タイプ L 所在階数 - 価格 3970万円~4170万円 間取り 2LDK+WIC 専有面積 65.41㎡ バルコニー 22.28㎡ 備考 ■いつでも換気のできる窓付きのバスルーム
■8帖大の洋室に大容量ウォークインクローゼット
■パウダールームとドレッシングルームに分けた使い勝手の良い間取り
■3面に4カ所のバルコニーを配置
間取り表記例:
S=サービスルーム(納戸) N=納戸 TR=トランクルーム DEN=書斎(納戸) W=ウォークインクロゼット(クローク) WIC=ウォークインクロゼット(クローク) SIC=シューズインクロゼット(クローク) WTC=ウォークスルークロゼット(クローク) MC=マルチクロゼット(クローク) SC=シューズクロゼット(クローク) R=ルーフバルコニー
ACCESS
アクセス


多彩なショッピング施設が身近に揃う、暮らしやすい住環境。大型複合商業施設をはじめ、日々の生活に欠かせないスーパーや24時間営業のコンビニ、ドラッグストアなどの買い物施設が周辺に揃っています。目的や気分に合わせて使い分けられる便利な環境です。
-
セブン-イレブン博多井相田2丁目店
約260m(徒歩4分) -
ホームプラザナフコ南福岡店
約770m(徒歩10分) -
博多とみひろ保育園
約380m(徒歩5分) -
福岡市立板付小学校
約910m(徒歩12分) -
まつうら整形外科
約500m(徒歩7分) -
福岡麦野郵便局
約670m(徒歩9分) -
西日本シティ銀行 雑餉隈支店
約1,180m(自転車5分) -
エニタイムフィットネス麦野店
約1,100m(自転車5分) -
井相田公園
約400m(徒歩5分)
デイリーヤマザキ博多南店
約120m(徒歩2分)ドラッグイレブン井相田店※2024年10月17日OPEN
約340m(徒歩5分)ワークマンプラス大野城仲畑店
約510m(徒歩7分)むぎの保育園
約440m(徒歩6分)雑餉隈保育園
約610m(徒歩8分)石田内科循環器科医院
約700m(徒歩9分)かさい歯科医院
約770m(徒歩10分)博多警察署 麦野交番
約720m(徒歩9分)博多南図書館
約1,020m(自転車5分)福岡銀行 雑餉隈支店
約1,190m(自転車5分)麦野北公園
約490m(徒歩7分)仲畑中央公園
約530m(徒歩7分)
※現地からの距離は地図上での概測距離です。※交通所要時間は、時刻運行表に基づいています。※徒歩分数は80m=1分で算出しています。※自転車分数は240m=1分で算出しています。※車分数は一般道は40km/h、福岡都市高速は60km/hで算出しています。※ラッシュ時など道路状況の変化によって所要時間は異なります。※信号待ちや渋滞等は考慮しておりません。 ※掲載の写真は2024年6月に撮影したものです。※環境情報は2024年6月時点のものです。
MODEL ROOM
モデルルーム

| インフォメーション | サングレート マンションギャラリー |
|---|---|
| 所在地 | 福岡市博多区上牟田3-11-13 |
| 営業時間 | - |
| 定休日 | 水曜日 |
| 開催期間 | 2024/12/28~2025/01/05 |
| お問い合わせ先 |
サングレート マンションギャラリー TEL:0120-433-630 営業時間:水曜定休 販売スケジュール:先着順 ※お問合せの際は、「LIFULL提携サイトを見て」とお伝えいただくとスムーズです |
PROPERTY
概要
物件概要
| 交通 | 西鉄バス「麦野」バス停 徒歩5分/西鉄天神大牟田線「雑餉隈」駅 徒歩11分 (820m) |
|---|---|
| 所在地 | 福岡県福岡市博多区井相田2丁目12-11(地番) |
| 総戸数 | 140戸 |
| 構造および階数 | 鉄筋コンクリート造 地上13階 |
| 敷地面積 | 5,271.28㎡ |
| 完成時期 | 2026年8月下旬(予定) |
| 引き渡し可能年月 | 2026年9月下旬以降(予定) |
| 分譲後の権利形態 | 敷地共有・建物区分所有 |
| 管理形態 | 区分所有者全員で管理組合を結成し、管理組合より管理会社へ委託予定 |
| 管理員の勤務形態 | 通勤 |
| 用途地域 | 準工業地域 |
| その他共有施設等 | - |
| 売主 | 株式会社タイヘイ |
| 売主免許番号 | - |
| 施工会社 | 吉原建設株式会社 |
| 管理会社 | 株式会社タッケン管理サービス |
| 販売会社 | 株式会社タイヘイ(売主) |
| 建築確認番号 | 第BVJ-FUK24-11-0009号(2024年6月6日付) |
| 備考 | - |
| 情報提供元 | 株式会社タイヘイ 福岡支店 [福岡県知事(14)第2693号 (更新中)] 〒8120012 福岡県福岡市博多区博多駅中央街5番11号 第13泰平ビル (一社)九州不動産公正取引協議会、(公社)福岡県宅地建物取引業協会 |
| 情報更新日 | 2026/03/02 |
| 次回更新予定 | 2026/03/16 |
| LIFULL HOME'S 物件番号 | 16010150000025 |
販売概要
4期
| 販売価格 | 3,870万円~7,960万円 |
|---|---|
| 最多価格帯 | 4,400万円台(4戸) |
| 間取り | 2LDK~4LDK |
| 専有面積 | 65.28㎡~109.05㎡ |
| バルコニー面積 | 12.80㎡~28.86㎡ |
| その他面積 | ■ルーフバルコニー面積/49.17㎡ |
| 販売戸数 | 24戸 |
| 本販売期以降の総販売戸数 | - |
| 管理費 | 7,440円~12,430円 |
| 修繕積立金 | 5,870円~9,810円 |
| 修繕積立基金 | 261,100円~436,200円 |
| その他施設費用、償却費 | - |
| その他費用 | ■ルーフバルコニー使用料:980円 |
| 販売備考 | - |
| 取引条件有効期限 | 2026/04/09 |
| 販売スケジュール | 先着順 |
| お問合せ先 | サングレート マンションギャラリー 営業時間:水曜定休 定休日:水曜日 TEL:0120-433-630 ※お問い合せの際は「LIFULL HOME'S提携サイトを見て」と お伝え戴くと話がスムーズに進みます。 |
※価格は物件の代金総額を表示しており、消費税が課税される場合は税込み価格です。(1000円未満は切り上げ。)
税率は引き渡し時期により異なりますので、各物件の詳細につきましてはお問い合わせください。
※現在掲載されている内容が変更される場合もありますので、あらかじめご了承ください。
※購入の前には物件内容や契約条件についてご自身で十分な確認をしていただくようにお願いいたします。
※完成予想図はいずれも外構、植栽、外観等実際のものとは多少異なることがあります。
※CG合成の画像の場合、実際とは多少異なる場合があります。
販売中
追焚機能
システムキッチン
シングル&DINKS向け
4LDK以上
オートロック
TVモニタ付インターホン
エレベーター
100m2以上
- E-LIFE
- 新築分譲マンション
- 福岡県でエリアから探す
- 福岡市博多区
- サングレート博多グランシティ エグゼ






















